8 (495) 128-16-41Ежедневно с 9:00 до 22:00
info@mgvtt.ru
Топка ТШПМ-2,5
Топка ТШПМ-2,5
Топка ТШПМ-2,5
Топка ТШПМ-2,5
Топка ТШПМ-2,5
Топка ТШПМ-2,5
Топка ТШПМ-2,5
Топка ТШПМ-2,5

Топка ТШПМ-2,5

Цена с НДС
332 500 р.

Уточнить цену с доставкой

Описание

Устройство и принцип работы топки ТШПМ-2.5

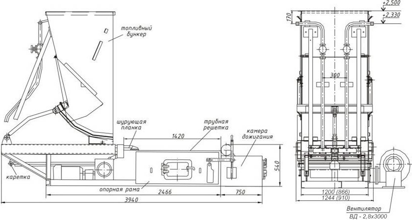
Топка ТШПМ-2.5 состоит из бункера для хранения топлива с шурующей планкой, неподвижной колосниковой решетки, установленной на раме и, собственно, корпуса топки из жаропрочной стали. При помощи шурующей планки топливо из бункера поступает на колосниковую решетку. Планка распределяет куски топлива по поверхности решетки и начинается процесс горения. Для более интенсивного горения и полноценного расхода топлива в системе предусмотрены вентиляторы, которые обеспечивают дополнительный приток воздуха в топку, снизу, через отверстия решетки. В рабочем состоянии топка поддерживает температуру решетки и шурующей планки, охлаждая их при помощи системы трубопровода.

Отличительная особенность топки ТШПМ-2.5 — шурующая планка. Ее основная задача — распределять топливо по решетке образуя равномерный слой для полноценного сжигания. Также, при помощи планки происходит сброс прогоревшего топлива в виде шлака и золы в камеру отходов, расположенную под колосниковой решеткой.

Рабочие процессы топки ТШМП-2.5 могут регулироваться при помощи котельной автоматики. Для этого в котельной дополнительно оборудуется щит с выводом контроля необходимых устройств. Также, автоматика может защитить от экстренных сбоев в котельной системе и заранее блокировать механизмы устройства.

Условное обозначение

Топка ТШПМ-2.5, где:

  • Т — топка;
  • Ш — с шурующей;
  • П — планкой;
  • М — механическая.
  • 2.5 — мощность сопутствующего котла.

Монтаж топки ТШПМ-2.5

Топка ТШПМ-2.5 устанавливается на предварительно выровненную поверхность без необходимости в строительстве специального фундамента. Крепится к поверхности при помощи анкерных болтов. Бункер топлива находится сбоку, сверху топки устанавливается водогрейный котел КВм.

Монтаж котельного оборудования производится с соблюдением СНиП 11-35-76 «Котельные установки» и «Правил устройства и безопасной эксплуатации паровых и водогрейных котлов».


Характеристики

МаркаТопка ТШПМ-2,5
ТипМеханическая
Вид топливаБурый угольКаменный угольАнтрацит
Диапазон изменения нагрузки, %40-100
Коэффициент избытка воздуха за топкой, не более1,6
Влажность топлива, не более, %38
Зольность топлива, не более, %48
Содержание мелочи (0-6 мм), не более, %50
Максимальный размер куска, мм100
Ширина колосниковой решетки, мм1180
Активная площадь колосниковой решетки, м²2,34
Масса, кг2400
Габаритные размеры (ДxШxВ), мм5300х1180х2530

Чертежи

Топка ТШПМ-2,5
Топка ТШПМ-2,5
Топка ТШПМ-2,5
Топка ТШПМ-2,5

Отзывы

Иван Дмитриев
Иван Дмитриев

Алексей Сафронов
Алексей Сафронов

Ольга Маркова
Ольга Маркова

Михаил Панкратов
Михаил Панкратов

Руслан Миронов
Руслан Миронов

Марина Иванова
Марина Иванова

Евгений Осокин
Евгений Осокин

Владимир Ефанов
Владимир Ефанов

Анатолий Карпов
Анатолий Карпов

Сергей Трухачев
Сергей Трухачёв

Рассчитайте мощность оборудования
за 3 шага

1/3 Укажите параметры здания
2/3 Укажите регион и населенный пункт
3/3 Укажите контактные данные

Вы недавно смотрели

Все товары