8 (495) 128-16-41Ежедневно с 9:00 до 22:00
info@mgvtt.ru
Котёл КВм-1.45 на угле
Котёл КВм-1.45 на угле
Котёл КВм-1.45 на угле
Котёл КВм-1.45 на угле
Котёл КВм-1.45 на угле
Котёл КВм-1.45 на угле
Котёл КВм-1.45 на угле
Котёл КВм-1.45 на угле

Котёл КВм-1.45 на угле

Цена с НДС
757 000 р.

Уточнить цену с доставкой
Отапливаемый объём : 39150, м³
Отапливаемая площадь : 14500, м²
Вид топки : Механическая колосниковая решётка

Описание

Устройство и назначение

Котельная установка КВм-1.45 на угле используется как средство нагрева воды в бытовых, общественных, производственных, складских и других помещениях, нуждающихся в централизованном тепло- и водоснабжении.

Котел серии КВм – это сварной водогрейный блок, собранный на опорной раме и механизированное топочное устройство из газоплотной стали.

В котельной установке КВм-1.45 на угле могут использоваться различные виды топок (ТШПм, ТЛПХ, ТЛЗМ). Топка состоит из топливоподачи, опорной рамы, короба, колосниковой решетки, привода, шкафа управления топкой, камеры догорания и дутьевого вентилятора. В топку горючее поступает из бункера и попадает на колосниковую решетку, где собственно и происходит процесс горения. Так же, механическим путем, топливо разравнивается по поверхности решетки для более полноценного сжигания.

Преимущества

  • Коэффициент полезного действия превышает 80%, что говорит о высокой производительности оборудования;
  • Вместительная топливная камера способствует эффективному сжиганию горючего;
  • Рациональный расход топлива обеспечивает экономичную эксплуатацию котельного оборудования;
  • Надежность механизмов устройства обусловлена конструктивными особенностями, которые гарантируют долгосрочную эксплуатацию;
  • Удобство эксплуатации объясняется механизацией процессов.

Условное обозначение

Котел КВм — котел водогрейный с механической топкой.

Комплектация

Котел КВм-1.45 на угле поставляется блоком в полной заводской готовности. В комплектацию могут входить: запорные вентили, предохранители, термометры и манометры, краны и вентилятор. В обязательный комплект поставки включены паспорт и инструкция по эксплуатации водогрейной установки.


Характеристики

Мощность, Гкал1.25
Мощность, кВт1450
Мощность, МВт1.45
КПД, не менее, %82
Отапливаемая площадь, м²14500
Отапливаемый объём, м³39150
Аэродинамическое сопротивление, Па (мм. вод. ст.)210
Расход теплоносителя среды, м³/ч50
Расход условного топлива, кг/ч218
Расход топлива, кг/ч305
Массовый расход уходящих газов, кг/с0.85
Низшая теплота сгорания топлива, кКал/кг5000
Температура воды на входе в котёл, не менее, °C60
Радиационная поверхность нагрева, м²16.3
Конвективная поверхность нагрева, м²43.5
Масса котла (без воды), кг4600
Расчетный срок службы, не менее, лет10
ТипКВм
Вид топливаКаменный уголь, Бурый уголь
Вид топкиМеханическая колосниковая решётка
Класс котла1
ТягаПринудительная
Давление рабочей среды, МПа (кгс/cм²)0,6
Гидравлическое сопротивление при перепаде t, МПа (кгс/cм²)0,08
Температура уходящих газов, °C170…250
Номинальное разрежение в топке при работе, Па20…60
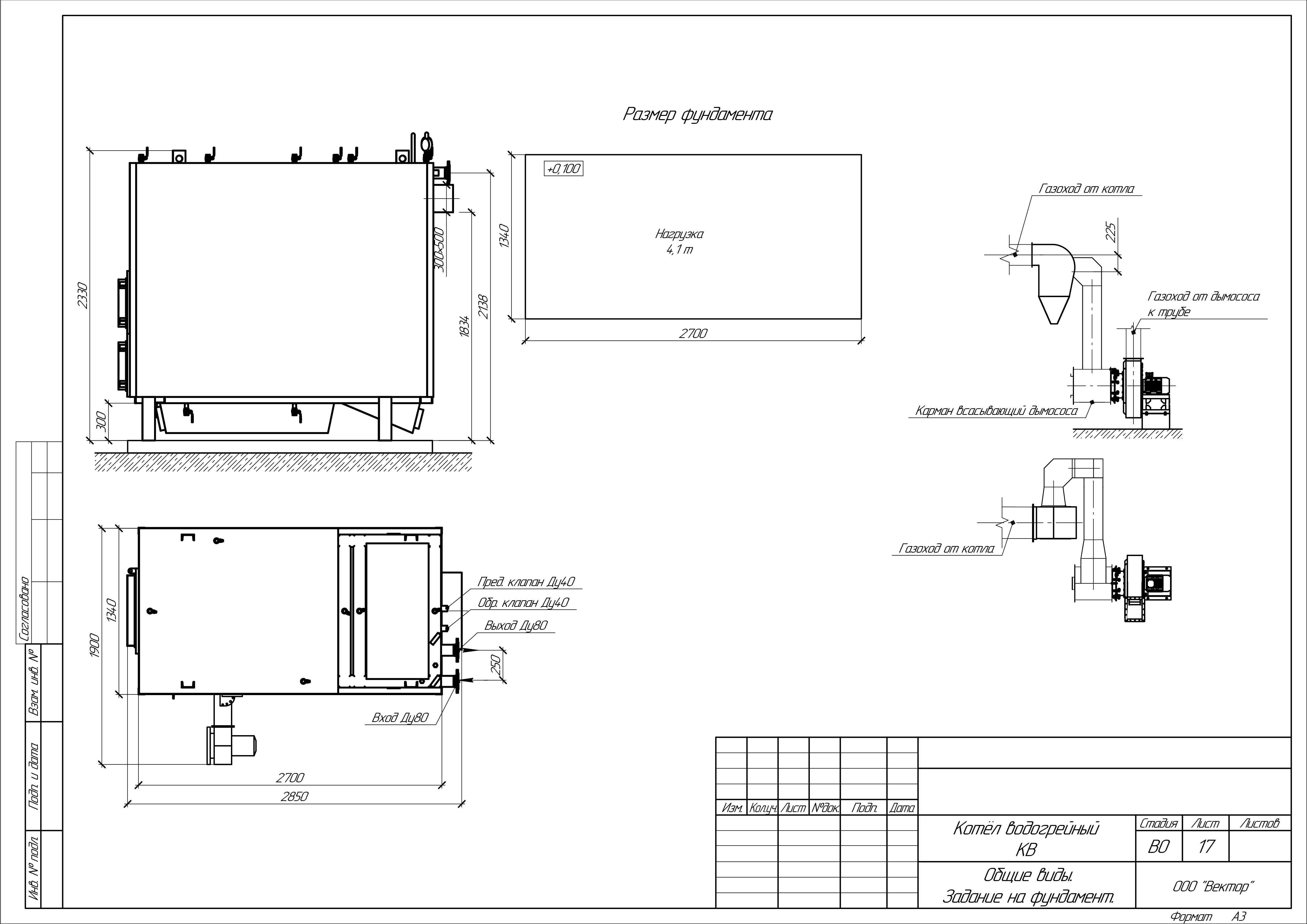
Габаритные размеры (ДxШxВ), мм5100х1510х2580

Чертежи

Котёл КВм-1.45 на угле
Котёл КВм-1.45 на угле

Отзывы

Иван Дмитриев
Иван Дмитриев

Алексей Сафронов
Алексей Сафронов

Ольга Маркова
Ольга Маркова

Михаил Панкратов
Михаил Панкратов

Руслан Миронов
Руслан Миронов

Марина Иванова
Марина Иванова

Евгений Осокин
Евгений Осокин

Владимир Ефанов
Владимир Ефанов

Анатолий Карпов
Анатолий Карпов

Сергей Трухачев
Сергей Трухачёв

Рассчитайте мощность оборудования
за 3 шага

1/3 Укажите параметры здания
2/3 Укажите регион и населенный пункт
3/3 Укажите контактные данные

Вы недавно смотрели

Все товары