8 (495) 128-16-41Ежедневно с 9:00 до 22:00
info@mgvtt.ru
Котёл КВа-1.5 на дизеле
Котёл КВа-1.5 на дизеле
Котёл КВа-1.5 на дизеле
Котёл КВа-1.5 на дизеле
Котёл КВа-1.5 на дизеле
Котёл КВа-1.5 на дизеле

Котёл КВа-1.5 на дизеле

Цена с НДС
430 000 р.

Уточнить цену с доставкой
Отапливаемый объём : 40500, м³
Отапливаемая площадь : 15000, м²
Вид топки : Газоплотная топочная камера

Описание

Устройство и принцип работы

Топливный котел КВа-1.5 на дизеле – это водонагреватель, который обеспечивает водоснабжение производственных и жилых помещений. Может функционировать как отдельный топочный механизм, так же может взаимодействовать и с другими котлами.

Конструкция котла КВа-1.5 на дизеле представляет собой непосредственно котел и горелку (вторая составляющая в комплектацию не входит). Топливо поступает в топливное пространство посредством горелки. Как следствие, происходит процесс горения и выделяется тепло. Полученный результат используется для водоснабжения производственных и жилых помещений.

Преимущества

  • Большой процент КПД;
  • Абсолютное сгорание топлива;
  • Система безопасности;
  • Простота монтажа;
  • Отсутствие необходимости водоподготовки.

Установка и комплектация

Процесс монтажа котла КВа-1.5 на дизеле должен осуществляться исключительно профессиональными специалистами. При установке конструкции необходимо руководствоваться требованиями, прописанными в «Правилах устройства и безопасной эксплуатации паровых и водогрейных котлов».


Характеристики

Мощность, Гкал1.29
Мощность, кВт1500
Мощность, МВт1.5
КПД, не менее, %92
Отапливаемая площадь, м²15000
Отапливаемый объём, м³40500
Аэродинамическое сопротивление, Па (мм. вод. ст.)210
Расход теплоносителя среды, м³/ч52
Расход условного топлива, кг/ч201
Расход топлива, кг/ч176
Массовый расход уходящих газов, кг/с0.49
Низшая теплота сгорания топлива, кКал/кг8000
Температура воды на входе в котёл, не менее, °C60
Радиационная поверхность нагрева, м²14.6
Конвективная поверхность нагрева, м²47
Масса котла (без воды), кг3100
Расчетный срок службы, не менее, лет10
ТипКва
Вид топливаДизель
Вид топкиГазоплотная топочная камера
Класс котла1
ТягаЕстественная
Давление рабочей среды, МПа (кгс/cм²)0,6
Гидравлическое сопротивление при перепаде t, МПа (кгс/cм²)0,08
Температура уходящих газов, °C170…250
Номинальное разрежение в топке при работе, Па20…60
Габаритные размеры (ДxШxВ), мм3400х1350х2350

Чертежи

Котёл КВа-1.5 — Фронтальный вид
Котёл КВа-1.5 — Фронтальный вид
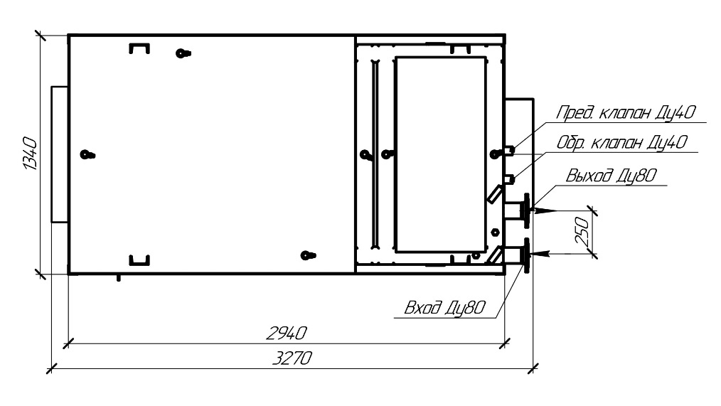
Котёл КВа-1.5 — Вид сверху
Котёл КВа-1.5 — Вид сверху
Котёл КВа-1.5 — Размер фундамента
Котёл КВа-1.5 — Размер фундамента
Котёл КВа-1.5 — Установка дымососа (фронтальный вид)
Котёл КВа-1.5 — Установка дымососа (фронтальный вид)
Котёл КВа-1.5 — Установка дымососа (вид сверху)
Котёл КВа-1.5 — Установка дымососа (вид сверху)

Отзывы

Иван Дмитриев
Иван Дмитриев

Алексей Сафронов
Алексей Сафронов

Ольга Маркова
Ольга Маркова

Михаил Панкратов
Михаил Панкратов

Руслан Миронов
Руслан Миронов

Марина Иванова
Марина Иванова

Евгений Осокин
Евгений Осокин

Владимир Ефанов
Владимир Ефанов

Анатолий Карпов
Анатолий Карпов

Сергей Трухачев
Сергей Трухачёв

Рассчитайте мощность оборудования
за 3 шага

1/3 Укажите параметры здания
2/3 Укажите регион и населенный пункт
3/3 Укажите контактные данные

Вы недавно смотрели

Все товары